facade syd hjemmeside.jpg

Transformation af Rekka

Rekka er en lille bebyggelse i Våler, Solør tegnet i 1958 af arkitekterne Otto L. Scheen og Tor Sverre Solheim.  Rekka betyder slet og ret ’rækken’ og består af ni rækkehuse opført og beklædt med træ med tilhørende garage i pudset gasbeton. Tilsammen danner alle husene en fin takt med små forskydninger i en lille skala. Garagerne transformeres til tidssvarende køkkenalrum med kontakt til både terrasse og husets ankomst. Vi supplerer på den måde orienteringen mod de bagvedliggende fællesarealer med kontakt til gaden og byen og får på den måde en betydelig tillægsværdi til renoveringen.

 
Situationsplan

Situationsplan

2017-11-09 11.48.19_desat.jpg
Opstalt mod nord

Opstalt mod nord

Visualisering af køkken

Visualisering af køkken

Visualisering af stue

Visualisering af stue

Eksisterende planforhold

Eksisterende planforhold

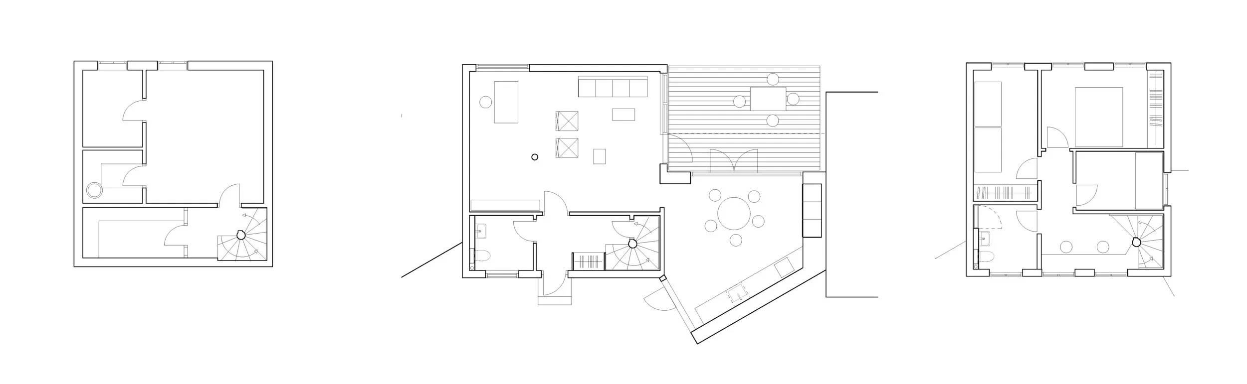
Fremtidige planforhold

Fremtidige planforhold